2026年1月7日グランドオープン
京都で“暮らすように泊まる”新しい宿泊体験
京都府京都市右京区に、和風空間を大切にした小さな一軒宿「CASA fantasia Kyoto(カーサ ファンタジア 京都)」が、2026年1月7日にグランドオープンしました。本施設は、株式会社SPACE HOSTEL(以下、SPACE HOSTEL)が手がける住宅宿泊事業の第三弾。空き家の有効活用を目的とした第一号宿泊施設として誕生しました。
観光地の喧騒から少し離れた住宅街に佇む、平屋の可愛らしい一軒家。京都に「泊まる」のではなく、「暮らす」感覚で滞在できる新しい宿泊スタイルを提案します。
「CASA」ブランドが大切にする想い

「CASA(カーサ)」はスペイン語で“家”を意味します。“現地に暮らすような心地よさと温もり”をコンセプトに、旅先でも自宅のようにくつろげる空間づくりを追求しています。静かな住環境と、都心部・主要観光地への良好なアクセスを両立し、京都の日常に溶け込むような滞在体験を提供することが、CASAブランドの特徴です。
空き家を再生した、和の魅力あふれる一軒宿
「CASA fantasia Kyoto」は、長らく使われていなかった小さな戸建住宅を丁寧にリノベーションして誕生しました。日本らしい和の要素を大切に残しながら、京都観光に寄り添う快適性と機能性を融合させた空間設計が特徴です。
施設の特徴|畳と木のぬくもりに包まれる時間
本施設は、京都市右京区の静かな住宅街に佇む1Kタイプの和風戸建て民泊です。
・落ち着いた和の玄関

玄関をくぐると、自然と畳のある和空間へとつながり、京都旅の始まりを穏やかに演出します。
・最大4名まで宿泊可能

- ベッド2台
- 布団2セット
カップルや友人同士での滞在にも適した、最大4名対応の一棟貸しです。
・暮らすように過ごせる設備

- 使い勝手の良いキッチン
- 乾燥機付き洗濯機
長期滞在や連泊にも嬉しい設備が整い、旅先でも日常の快適さを保てます。
・日本の伝統的な遊びを体験

けん玉・お手玉・百人一首など、日本の昔ながらの遊びに触れられる工夫も用意されており、海外からの旅行者にも好評が期待されます。
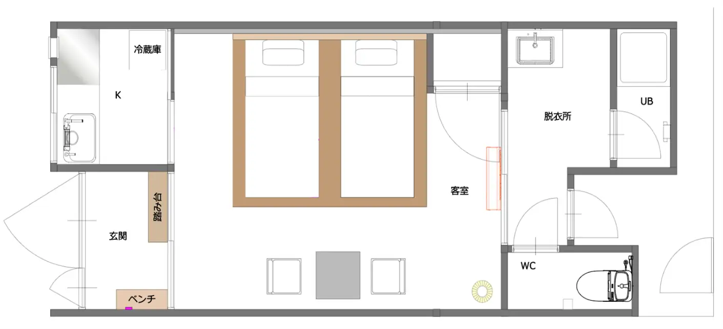
・間取り図

施設概要
| 項目 | 内容 |
|---|---|
| 施設名 | CASA fantasia Kyoto(カーサ ファンタジア 京都) |
| 所在地 | 京都府京都市右京区山之内荒木町15-9 |
| アクセス | 京福電気鉄道嵐山本線「山ノ内」駅 徒歩約9分 「嵐電天神川」駅 徒歩12分 京都市営地下鉄「太秦天神川」駅 徒歩12分 |
| 特徴 | 一棟貸し/1日1組限定/最大4名 |
| 運営会社 | 株式会社SPACE HOSTEL (株式会社fantasista 100%子会社) |
| 予約方法 | Airbnb、Booking.com(準備中) |
観光にも長期滞在にも便利な立地

嵐山へは電車で約15分、金閣寺へ約20分、清水寺へも約30分と、京都観光の拠点として利便性の高い立地。周辺にはコンビニや飲食店もあり、暮らすような滞在を快適に支えます。
春の桜、秋の紅葉など、四季折々の京都の表情を身近に感じられる点も魅力です。
今後の展望|Web3×宿泊体験の可能性
SPACE HOSTELを含むグループでは、東京・大阪・京都・沖縄を中心に、ホテル事業および住宅宿泊事業を全国へ拡大予定です。今後はWeb3・ブロックチェーン技術を活用し、
- 会員証NFTによる優待・先行予約
- 地域限定体験チケットのNFT化
など、旅の前後も含めて楽しめる新しい宿泊体験の創出を検討しています。
記事要約(Summary)
- 京都・右京区に和風の一棟貸し宿が誕生
- 空き家を活用した、畳と木の温もりある空間
- 最大4名・1日1組限定で、静かな京都時間を満喫
- 観光にも長期滞在にも適した立地
- 今後はWeb3技術との融合も視野に展開
「CASA fantasia Kyoto」は、京都を“訪れる”だけでなく、“暮らす”感覚で味わいたい人に向けた、新しい選択肢となりそうです。
■企業ニュース対象-株式会社fantasista
https://companydata.tsujigawa.com/company/7010401066847/

























この記事へのコメントはありません。